Serero Architectes est une agence spécialisée dans la surélévation bois et la rénovation d’immeubles anciens en milieu urbain dense.
Notre équipe accompagne les copropriétés et maîtres d’ouvrage dans des projets d’architecture ambitieux et hautement techniques, visant à valoriser le patrimoine, augmenter la surface habitable et améliorer la performance énergétique du bâti existant.
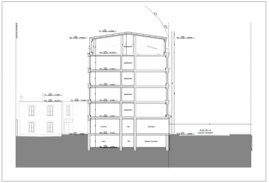
Cet article présente l’étude de cas d’une surélévation de deux niveaux en bois réalisée récemment sur un immeuble en pierre de taille du XIXᵉ siècle situé à Paris dans le quartier de Grenelle – Paris 15ᵉ.

L’immeuble, composé de cinq niveaux sur cave, présentait une structure saine mais nécessitait une mise aux normes complète et un programme global de rénovation énergétique :
L’objectif : gagner deux étages habitables tout en préservant l’architecture haussmannienne de la façade sur rue.

Un diagnostic initial a révélé la présence d’amiante dans les conduits de cheminées et de plomb dans les peintures anciennes
La première phase a donc consisté à curer et assainir entièrement les étages existants.
Nous avons ensuite repris et renforcé les planchers, puis coulé des chapes allégées sur résilient acoustique, permettant un gain de 32 dB pour assurer un grand confort entre logements.

Situé en périmètre protégé, le projet a nécessité l’avis de l’Architecte des Bâtiments de France (ABF).
Deux étapes ont été menées :
1️- Permis de construire (PC) pour une surélévation avec toiture à la “mansart” c’est à dire une toiture avec un comble brisé[1] dont chaque versant a deux pentes, le brisis et le terrasson, articulés par la ligne de bris.
2- Permis modificatif (PCM) pour augmenter le volume habitable et optimiser les pentes du toit. Le brisis a été modifié pour un pan de toiture vertical sur la surélévation.
L’architecte des bâtiments de France (ABF) a salué l’intégration architecturale de la surélévation dans l’existant de ce projet.
Le projet répond aussi aux exigences du PLU de Paris : création d’un local vélo et d’un local déchets pour favoriser les mobilités douces et le tri.
L’intégration d’un ascenseur neuf dans des espaces communs de l’immeuble très contraint représentait un défi majeur. L’ascenseur a été intégré dans le hall d’entrée de l’immeuble. Une trémie a été créée dans tous les étages de l’immeuble avec la création d’une gaine en voile béton. Les dimensions ne permettaient pas de réaliser un ascenseur PMR de 630 kg. Nous avons donc créé une cabine d’ascenseur sur mesure afin de limiter la largeur de la cabine et de laisser une porte d’entrée principale de 1,20m de large.
L’installation et la pose par nos compagnons d’ une cabine sur mesure, garantit
C’est une intervention essentielle pour la valorisation immobilière globale de l’immeuble..
Pour respecter l’esprit parisien, nous avons choisi une couverture en zinc finition quartz, avec une pose sur tasseaux.
Grâce à la préfabrication bois, nous avons pu réduire les pentes et maximiser le volume intérieur des combles, offrant des logements lumineux et confortables.
L’opportunité de connecter l’immeuble au réseau CPCU a permis d’abandonner les anciennes chaudières et d’améliorer :
Une sous-station a été installée en sous-sol pour alimenter l’ensemble des radiateurs à eau des appartements.
La structure en bois a été fabriquée en atelier et livrée prête à poser. Les avantages de cette technique sont les suivants :
– Moins de nuisances pour les riverains
– Sécurité accrue pour les équipes
– Qualité contrôlée en atelier
– Pose en deux semaines seulement
– Planning global de moins de 8 mois
Un chaînage périphérique en haut des murs en pierre assure le liaisonnement entre l’existant et la surélévation.
Le bureau d’études a confirmé que l’augmentation de charge restait inférieure à 10 %, évitant toute reprise en fondation.
Le résultat est un bâtiment plus léger après travaux qu’avant dépose de la toiture en tuiles.
La surélévation en ossature bois permet une rénovation à la fois écologique, rapide et économique.
Avec un coût maîtrisé d’environ 1 450 €/m² SHOB, hors aménagements de mobiliers intérieurs, elle augmente la valeur du patrimoine tout en améliorant le confort et la performance énergétique.
Construire léger en bois évite les renforcements structurels et limite fortement l’empreinte carbone du chantier.
La préfabrication hors-site réduit les délais, les nuisances et les déchets.
Une solution intelligente pour créer des logements sans artificialiser les sols, tout en préservant l’architecture haussmannienne.
Face au manque de foncier, à l’urgence climatique et aux nouvelles obligations énergétiques, la surélévation bois apparaît comme une opportunité stratégique pour les copropriétés d’immeuble en site urbain dense tels que paris afin de :
Serero Architectes met son expertise au service de projets ambitieux, innovants et respectueux du patrimoine.Nous réalisons des audits, faisabilités, DPC, diagnostics structurels et dossiers ABF pour optimiser chaque opération.
